





Bebauungsplan Nr. 138 „Johannes-Brahms Straße“, Stadt Schwerin
Bebauungsplan „Berufsschulzentrum Nord“ der Hansestadt Wismar
Änderung des Flächennutzungsplanes der Hansestadt Wismar
Änderung des Teilflächennutzungsplanes, Gemeinde Rastow
Bebauungsplan Nr. 50 „Neubau Kreisstraßenmeisterei Grevesmühlen“
Bebauungsplan Nr. 88.13 „Lewenberg – Ehemalige Möbelwerke“ Schwerin
Bebauungsplan Nr. 124 „Nahversorger Möwenburgstraße“ Schwerin
Bebauungsplan Nr. 4 „Preisterwürde“, Gemeinde Uelitz
Bebauungsplan Nr. 11 „Wohngebiet an der Langen Straße“, Gemeinde Lübesse
Änderung Satzung nach § 34 (4) 1+3 BauGB, Gemeinde Warlow
Änderung Bebauungsplan Nr. 3 „Gewerbegebiet Dreenkrögen“, Gemeinde Wöbbelin
Änderung Bebauungsplan Nr. 2 „Wohngebiet Mühlenberg“, Stadt Brüel
Bebauungsplan Nr. 8 „Am Lehmberg“, Gemeinde Rastow
Änderung Bebauungsplan Nr. 6 „Industriegebiet Lübesse II“
Änderung des Flächennutzungsplanes, Gemeinde Groß Laasch
Bebauungsplan Nr. 6 „An der Neustädter Straße“, Gemeinde Groß Laasch
Bebauungsplan Nr. 113 „Warnitz – Kirschenhöfer Weg II“, Stadt Schwerin
Bebauungsplan Nr. 8 „Wohngebiet mit KITA an der Hauptstraße“, Gemeinde Sülstorf
Bebauungsplan Nr. 15 „Grooth Moor“, Gemeinde Leezen
Bebauungsplan Nr. 11 „Lenzer Straße“, Gemeinde Fünfseen
Änderung Satzung nach § 34 (4) 1+3 BauGB, Gemeinde Kloster Tempzin
Änderung Bebauungsplan Nr. 2 „Ortslage Flessenow“, Gemeinde Dobin am See
Bebauungsplan Nr. 97.16 „Wickendorf-West“, Stadt Schwerin
Änderung Bebauungsplan Nr. 2 „Wohngebiet Mühlenberg“, Stadt Brüel
Bebauungsplan Nr. 20 „Wohngebiet am Kiessee“, Gemeinde Pinnow
Änderung des Flächennutzungsplanes, Gemeinde Pampow
Änderung des Bebauungsplanes Nr. 1 „Gewerbegebiet Pampow“
Bebauungsplan Nr. 8 „Ortslage Wendorf“, Gemeinde Kuhlen-Wendorf
Änderung Teilflächennutzungsplan der Gemeinde Pinnow
Bebauungsplan Nr. 55.10 „Neues Wohnen am Lankower See“ – LANDESBAUPREIS MV –
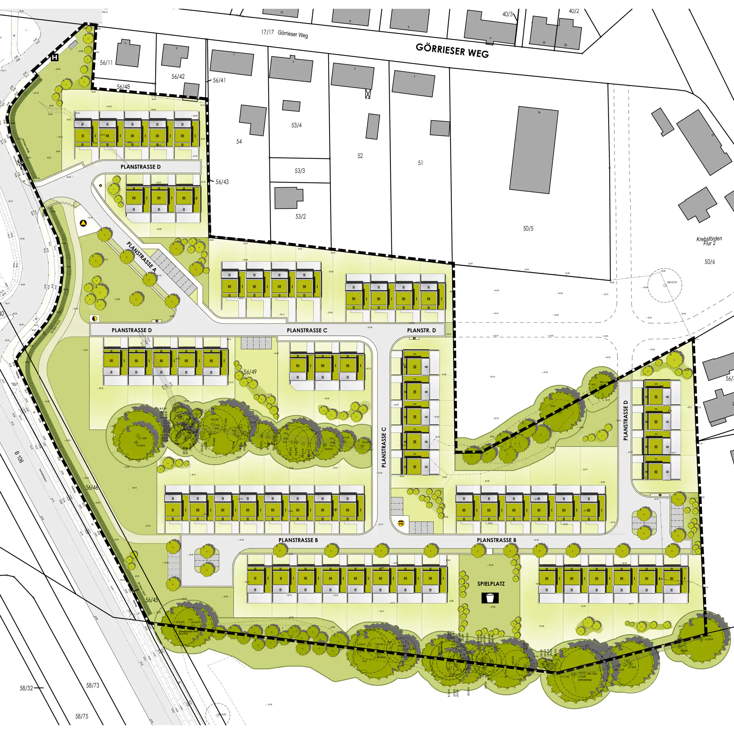
Bebauungsplan Nr. 104 „Krebsförden – Am Görrieser Weg“, Stadt Schwerin
Änderung des Bebauungsplanes Nr. 5A „Am Stall“, Gemeinde Pinnow
Bebauungsplan Nr. 20 „Am Störkanal“, Gemeinde Plate
Bebauungsplan Nr. 19 „Nahversorgungszentrum Goethestraße“, Stadt Sternberg
Bebauungsplan „Schwimmteichanlage Basthorst“, Stadt Crivitz
Änderung des Bebauungsplanes Nr. 1 „Am See“, Gemeinde Blankenberg
Bebauungsplan Nr. 90.14/2 „Wohnquartier am Rosenhain“, Stadt Schwerin
Änderung des Bebauungsplanes Nr. 8 „Biogasanlage Diakonie“, Gemeinde Dobin am See
Änderung des Bebauungsplanes Nr. 1 „Scharbow See“, Gemeinde Mustin
Änderung des Teilflächennutzungsplanes der Gemeinde Pinnow
Bebauungsplan Nr. 17 „Wohnbebauung am Mühlensee“, Gemeinde Pinnow
Änderung des Bebauungsplanes Nr. 5A „Am Stall“, Gemeinde Pinnow
Änderung des Flächennutzungsplanes der Gemeinde Stralendorf
Bebauungsplan Nr. 6 „Autohof mit Tankstelle/Motel an der B 106“, Gemeinde Wöbbelin
Änderung des Bebauungsplanes Nr. 1 „Mattenstieg-Herrenweg“, Gemeinde Dabel
Änderung Bebauungsplan Nr. 4 „Wochenend- und Ferienhausgebiet“, Gemeinde Dümmer
Änderung des Bebauungsplanes Nr. 6 „Gebiet zwischen Gartenweg und Lindenweg“, Gemeinde Stralendorf
Bebauungsplan Nr. 5 „Ländlicher Erlebnishof Golchen“, Stadt Brüel
Änderung Abrundungssatzung nach § 34 (4) 3 BauGB, Gemeinde Gneven
Ergänzungssatzung nach § 34 (4) 1+3 BauGB, Gemeinde Hohen Pritz
Änderung Abrundungssatzung nach § 34 (4) 1–3 BauGB, Gemeinde Langen Brütz
Bebauungsplan „Tankstelle zwischen B5 und Ludwigsluster Chaussee“, Stadt Grabow
Dorferneuerungsplanung Gemeinde Bülow
Ergänzungssatzung § 34 (4) 1+3 BauGB, Gemeinde Kuhlen-Wendorf
Bebauungsplan Nr. 6 „Reitplatz Schlosspark Wendorf“, Gemeinde Kuhlen-Wendorf
Abrundungssatzung nach § 34 (4) 3 BauGB „Schwerin-Görries“, Stadt Schwerin
Bebauungsplan Nr. 14 „Altenhilfezentrum Pinnow“, Gemeinde Pinnow
Bebauungsplan Nr. 4 „Gewerbepark Demen“, Gemeinde Demen
Bebauungsplan Nr. 8 „Wochenendhausgebiet I+II“, Gemeinde Godern
Änderung des Flächennutzungsplanes der Gemeinde Godern
Bebauungsplan Nr. 5 „Erweiterung Golfplatz Vorbeck“, Gemeinde Gneven
Bebauungsplan Nr. 8 „Erweiterung Golfplatz Vorbeck“, Gemeinde Langen Brütz
Änderung des Flächennutzungsplanes der Gemeinde Langen Brütz
Änderung Bebauungsplan Nr. 4 „Wochenend- und Ferienhausgebiet“, Gemeinde Dümmer
3. Änderung Vorhaben- und Erschließungsplan Nr. 2 „Agro-Egge GmbH & Co. KG“, Gemeinde Demen
Bebauungsplan Nr. 4 „Ferienhausgebiet Am Schulberg Weberin“, Gemeinde Kuhlen-Wendorf
Änderung des Bebauungsplanes Nr. 5A „Am Stall“, Gemeinde Pinnow
Bebauungsplan Nr. 5 „Feriensiedlung Retgendorf“, Gemeinde Dobin am See
Dorferneuerungsplanung Gemeinde Kuhlen-Wendorf
Bebauungsplan Nr. 50.04/2 „Lankower Aubach-Nord“, Stadt Schwerin
Flächennutzungsplan der Gemeinde Pinnow
Bebauungsplan Nr. 43.03 „Warnitz-Wiesengrund“, Stadt Schwerin
Dorferneuerungsplanung Gemeinde Blankenberg
2. Änderung Vorhaben- und Erschließungsplan Nr. 2 „Agro-Service-Kobande“, Gemeinde Demen
Bebauungsplan Nr. 3 „Ferienhaussiedlung am Schweriner See“, Gemeinde Retgendorf
Bebauungsplan Nr. 8 „Umbau Schlosshotel Basthorst“, Stadt Crivitz
Bebauungsplan Nr. 2 „Wohngebiet Zaschendorf-Ausbau“, Gemeinde Kuhlen-Wendorf
Änderung Bebauungsplan Nr. 4 „Wochenend- und Ferienhausgebiet“, Gemeinde Dümmer
Entwicklungskonzept „Alte Ziegelei Blankenberg“, Gemeinde Blankenberg
* 30. Mai 1962 in Schwerin
Dipl.-Bauingenieur und Architekt für Stadtplanung
Telefon: +49 (0)385 76 10 665
E-Mail: office@assw.de
seit 2002
Gemeinsames Büro mit Henryk Stutz in Schwerin
2000-2002
Leitung Architekturbüro im Büro Bauplan, Schwerin
1990-2002
Stadtplaner im Büro Bauplan, Schwerin
1996
Mitglied der Architektenkammer MV,
Nr. 2171-96-1-d
1983-1987
Studium Ingenieurhochschule Wismar
1981
Abitur in Neubrandenburg
* 03. Oktober 1974 in Schwerin
Dipl.-Bauingenieur & Architekt
Telefon: +49 (0)385 76 10 665
E-Mail: stutz@assw.de
2007
Brandschutzplaner, BP-59-2007
2004
Mitglied der Architektenkammer MV,
Nr. 2621-04-1-a
seit 2002
Gemeinsames Büro mit Jens Winter in Schwerin
2000-2002
Architekt Büro Bauplan, Schwerin
2000
Diplomarbeit unter Prof. Joedicke und Prof. Onnen-Weber "Neubau Oceaneum Stralsund"
1997-1999
Freie Mitarbeit im Büro Kapfer und Büro Angelis + Partner in Wismar und Oldenburg
1995 - 2000
Architekturstudium Hochschule Wismar
1993-1995
Praktika als Zimmermann
1993
Abitur in Gadebusch